Wohnimmobilie > Einfamilienhaus
Reserviert

Charmantes Einfamilienhaus mit Innenhof und Scheune in zentraler Lage von Maikammer

67487 Maikammer
200.000 €

EN1003
1944
120 m²
170 m²
6
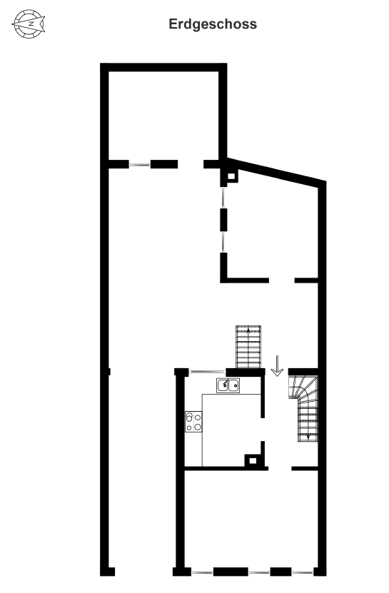
  • Zum Verkauf steht ein gepflegtes Einfamilienhaus mit rund 120 m² Wohnfläche, Innenhof und einer großzügigen Scheune in zentraler Lage von Maikammer. Das Haus überzeugt durch seine durchdachte Raumaufteilung mit insgesamt sieben Zimmern sowie zusätzlicher Nutzfläche im Nebengebäude. Ideal geeignet für Familien, Selbstnutzer mit Platzbedarf oder Handwerker, die Raum für Hobby, Lager oder Werkstatt suchen – und das ganz ohne Gartenpflegeaufwand.

    Das etwa 1944 erbaute Wohnhaus erstreckt sich über zwei Etagen und bietet ca. 120 m² Wohnfläche. Insgesamt stehen sieben Zimmer, eine Küche, ein Tageslichtbad mit Dusche sowie zwei separate Toiletten zur Verfügung. Das Objekt befindet sich in einem bezugsfertigen Zustand – die Qualität ist als solide und gepflegt zu beschreiben.

    Die Immobilie wurde in den letzten Jahren modernisiert:
    Im Jahr 2010 wurden die Wasser- und Elektroleitungen erneuert sowie doppelverglaste Kunststofffenster eingebaut. Ein neuer Heizungsboiler wurde ebenfalls installiert. Zuletzt erhielt das Badezimmer 2024 eine neue Duschkabine.

    Der Innenhof ersetzt den Garten und bietet eine pflegeleichte Alternative mit vielfältigen Nutzungsmöglichkeiten – z. B. als gemütlicher Sitzbereich oder Stellfläche.
  • Flächen

    • Wohnfläche: 120 m²
    • Grundstücksfläche: 170 m²
    • Nutzfläche: 100 m²
    • Zimmer insgesamt: 6
    • Schlafzimmer: 6
    • Badezimmer: 1
    • Etagen: 2
    • Stellplatzart: Freiplatz
    • Außenstellplätze: 1

    Zustand & Erschließung

    • Baujahr: 1944
    • Zustand: sanierungsbedürftig
    • Letzte Modernisierung: 2010
    • Keller: voll unterkellert

    Sonstiges

    • Immobilie ist verfügbar ab: sofort
  • – Wohnfläche: ca. 120 m²
    – Grundstück: ca. 170 m²
    – 6 Zimmer + Küche + Bad + 2 WC
    – Laminatböden in den Wohnräumen
    – Tapezierte Wände
    – Kunststofffenster, doppelt verglast (2010)
    – Erneuerte Elektro- und Wasserleitungen (2010)
    – Neuer Heizungsboiler (2010)
    – Duschkabine neu (2024)
    – Unterkellerung vorhanden

    • Art der Ausstattung: Standard
    • Befeuerung: Gas
    • Bodenbelag: Laminat
    • Badausstattung: Dusche, Fenster
    • Abstellraum
    • Gäste-WC
    • Energieausweis-Art: Bedarf
    • Endenergiebedarf: 242,18 kWh/(m²*a)
    • Primärenergieträger: Gas
    • Energieeffizienzklasse: G
    • Energieausweis-Jahrgang: ab Mai 2014
    • Energieausweis-Gebäudeart: Wohngebäude
  • Die Immobilie befindet sich in zentraler Lage von Maikammer, einer der beliebtesten Weinbaugemeinden an der Südlichen Weinstraße in Rheinland-Pfalz. Die Region ist geprägt von malerischen Weinbergen, historischen Ortskernen und einer hohen Lebensqualität – ideal für Familien, Berufstätige und Naturliebhaber gleichermaßen.

    Maikammer bietet eine sehr gute Infrastruktur mit allem, was man für den täglichen Bedarf benötigt:

    Der nächste Supermarkt (Wasgau) ist nur etwa 300 Meter entfernt und fußläufig in wenigen Minuten erreichbar.

    Eine Bäckerei, Apotheke, Bank, Metzgerei sowie ein Wochenmarkt befinden sich ebenfalls im Ortszentrum und sind ebenfalls gut zu Fuß erreichbar.

    Kindergarten, Grundschule sowie eine Realschule plus sind rund 700 Meter entfernt, sodass auch Familien mit Kindern von kurzen Wegen profitieren.

    Weiterführende Schulen (Realschule plus, Gymnasium) befinden sich in Edenkoben, nur ca. 3 km entfernt, mit schneller Anbindung per Bus oder Fahrrad.

    Sportbegeisterte finden im Ort Turnhallen, einen Sportplatz, Tennisplätze sowie zahlreiche Wander- und Radwege, die direkt vor der Haustür starten.

    In unmittelbarer Nähe befindet sich das beliebte Kalmitbad, das Freibad von Maikammer, welches in den Sommermonaten eine erfrischende Freizeitmöglichkeit für Groß und Klein bietet.

    Verkehrstechnisch ist Maikammer hervorragend angebunden:

    Die Autobahn A65 (Anschlussstelle Edenkoben) erreicht man in ca. 5 Fahrminuten – von dort bestehen gute Verbindungen nach Landau, Neustadt, Ludwigshafen und Karlsruhe.

    Eine Bushaltestelle ist nur wenige Schritte entfernt, der nächste Bahnhof befindet sich im 2 km entfernten Kirrweiler oder Edenkoben mit direkter Verbindung nach Neustadt, Mannheim oder Karlsruhe.

    Insgesamt bietet die Lage eine gelungene Kombination aus Ruhe, Naturverbundenheit und urbaner Erreichbarkeit – in einer der gefragtesten Wohnlagen der Südpfalz.

    • Distanz zum Flughafen: 46,2 km
    • Distanz zum Fernbahnhof: 2,4 km
    • Distanz zu Bushaltestelle: 0,3 km
    • Kaufpreis: 200.000 €
    • Käuferprovision: 3,57
    • Hinweis zur Courtage:

      Bei Abschluss eines notariellen Kaufvertrages ist vom Käufer eine Vermittlungs- bzw. Nachweisprovision in Höhe von 3,57 % des Kaufpreises inklusive gesetzlicher Mehrwertsteuer (derzeit 19 %) an Yannik Meyer Immobilien zu zahlen. Die Provision ist mit Vertragsabschluss verdient und fällig.
      Mit dem Verkäufer wurde ein Maklervertrag in gleicher Höhe abgeschlossen.

Kontakt

Immobilie Anfragen

Dein Ansprechpartner bei uns

Yannik Meyer

Sicher!  
Yannik Meyer Immobilien Logo im Footer, symbolisiert professionelle Immobilienberatung.

Königstraße 28
76829 Landau in der Pfalz
Deutschland

Tel.: 06341 951 904 0
Fax: 06341 951 904 9
E-Mail: immobilien@yannik-meyer.de

DEKRA Zertifikat für Immobilienbewertung, Footer.Logo der Deutschen Immobilien-Akademie an der Universität Freiburg.Logo von Yannik Meyer Immobilien, Bronze Partner bei Immo Scout24.

Copyright 2025 Yannik Meyer Immobilien. Alle Rechte vorbehalten.

Copyright 2025 Yannik Meyer Immobilien.
Alle Rechte vorbehalten.